Rozvaděč SOHO LC-18 do zdi s lištami 2U, 4U a 11U, 550x550 šedá RAL7035 s rámečkem k zazdění
Kód: 86000548Viac ako 100 000
produktov
Doprava zadarmo
od 99 EUR
Slovenský e-shop
s kamennou predajňou
Podrobný popis
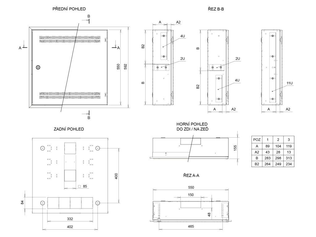
Moderní nástěnný datový rozvaděč Solarix LC-18 je určen pro instalaci prvků síťových kabeláží menšího rozsahu, nebo pro instalaci prvků telekomunikačních rozvodů.Rozvaděč Solarix LC-18 je tvořen skeletem, který se vyznačuje velkou pevností a tuhostí. Z čelní strany je rozvaděč osazen plechovými dveřmi se dvěma panty a kovovým zámkem na patentní klíč. Tyto plechové dveře jsou doplněny perforací, pro pasivní ventilaci zařízení umístěné v rozvaděči.
Vstup kabelů je možný předpřipravenými otvory v zádech i ve všech stěnách rozvaděče. V zadní části rozvaděče jsou připraveny otvory pro uchycení na zeď.
19" rámy mají rozměry 4U a 11U ve vertikálním směru a 2U v horizontálním směru.
Na skříni a rámu jsou připravené otvory, které určují pozice při sestavení. Rám lícuje s dveřmi, pak je úhel otevření dveří cca 110 st., nebo dveře jsou z rámu vysunuty, pak je úhel otevření dveří 180 st.
Standardní provedení
– venkovní rozměry 550x550x150 mm
– v dodávce 3 páry vertikálních 19" lišt pro montáž zařízení 2U, 4U a 11U
– dveře otevíratelné v úhlu 180°, možnost zvolit pravé nebo levé zavírání
– přední perforované dveře s 1-bodovým zámkem na patentní klíč
– kabelové prostupy ve spodní, horní i zadní části
– v zadní části 4 otvory o průměru 6,5 mm pro uchycení na stěnu
– zemnící káblík propojující tělo rozvaděče se dveřmi
– nosnost 30 kg
– stupeň krytí: IP 20
Povrchová úprava
Provedena práškovou technologií pro vnější prostředí dle vzorníku barev RAL. Standardem je RAL 7035 (světle šedá) RAL 9005 (černá) a RAL 9003 (bílá).
Příslušenství
Ke skříni je možné přiobjednat velké množství příslušenství, jako jsou záslepky, vyvazovací panely a mnoho dalších včetně specielního příslušenství na přání zákazníka.
- Výška: 2U horizontálně, 4U vertikálně, 11U vertikálně
- Výška: 550 mm
- Šířka: 550 mm
- Hloubka: 150 mm
- Hmotnost: 10 kg
- Barva: RAL 7035
Dodatočné parametre
| Kategória: | NEZARADENE |
|---|---|
| Záruka: | 24 měsíců |
| EAN: | 8595684710663 |
Hodnotenie tovaru
Buďte prvý, kto napíše príspevok k tejto položke.
Diskusia
Buďte prvý, kto napíše príspevok k tejto položke.
